PROJECT: Six-Module Home With Garage On A Sloping Site
We are excited to unveil our latest project, a groundbreaking collaboration between Australian Steel Framing, Broadworth Modular and TRUECORE Steel.
Our team has worked closely to bring to life a remarkable modular home for clients, making the scenic move from Sydney to the breathtaking Mid North Coast of New South Wales.
Perched on a sloping site, this property boasts commanding views towards Forster, offering a prime example of design in perfect harmony with its natural surroundings. This project was not without its challenges, but through innovative design and strategic planning, we've created a steel-framed home that is as functional as it is beautiful.
Overcoming Topographical Challenges with Creative Design
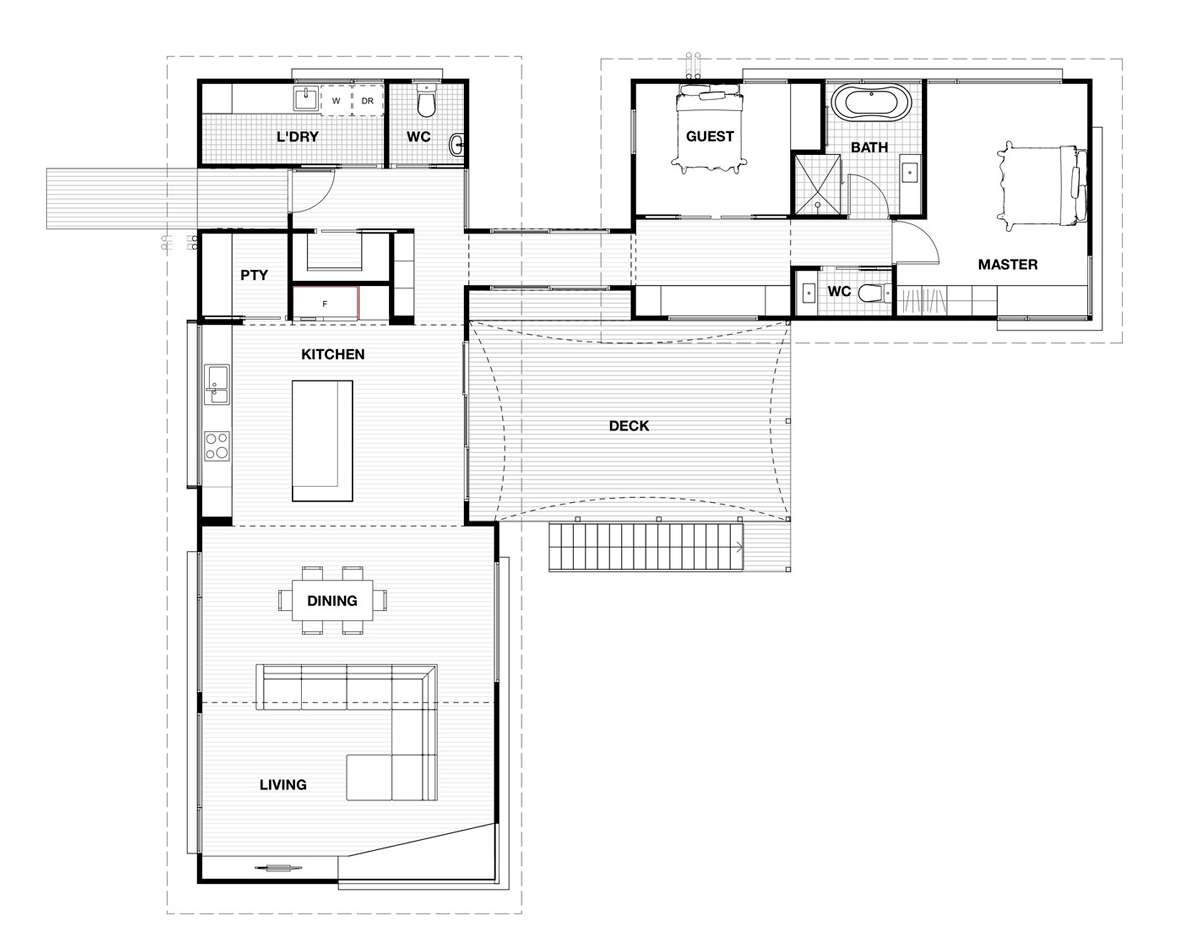
The sloping nature of the site prompted Broadworth to adopt an 'L' shaped layout for the home, maximising the panoramic views available from every angle. Beneath the structure, a cleverly integrated garage provides practicality without compromising style, ensuring that every aspect of the home's design is functional and aesthetically pleasing.
Design Highlights: A Seamless Indoor-Outdoor Experience
One of the standout features of this home is the living room's dramatic frameless corner window. This design frames the lush southern landscape and the distant western mountain ranges, transforming the natural world outside into a breathtaking, living artwork.
The design also emphasises the seamless transition between indoor and outdoor spaces. Upon entering, visitors are greeted by a beautifully landscaped private courtyard, which introduces a sense of tranquillity that permeates throughout the home. A breezeway filled with natural light divides the living and sleeping areas, offering peeks of the southern vistas and further enhancing the home's connection to its environment.
Embracing Modern Techniques: The Role of Prefabrication
In line with modern, sustainable construction practices, the house, including a spacious deck, was prefabricated offsite using our Truecore steel frames. This approach not only streamlined the building process but also minimised the environmental impact on the site, showcasing our commitment to sustainable building practices.
A Collaboration That Embodies Modern, Sustainable Living
This project is a testament to the innovative spirit of the construction industry, demonstrating what can be achieved through collaborative effort and creative thinking. The result is a custom-designed steel framed home that not only meets the specific needs of our clients but also complements the natural beauty of the Mid North Coast.
Materials Used In Construction:
Weathertex Weathergroove 150 Cladding
Australian Blackbutt Solid Flooring
Custom joinery and kitchen by Envision Kitchens.
Lysaght Truecore steel frame supplied by Australian Steel Framing
We are proud to have transformed our client's vision into reality, creating a space that is not just a place to live but a reflection of the beauty and tranquillity of its surroundings. This project is a beacon of modern, sustainable, and contextually sensitive design, embodying what can be achieved when innovation and nature come together.
Useful Reading:
Australian Steel Framing is NSW's leading steel frame supplier and manufacturer. Whether you're building a new house, commercial property, hospital, or industrial shed, we've got your framing needs covered.
We design and fabricate lightweight steel frames and steel trusses made from 0.55mm – 1.2mm Bluescope TRUESCORE® Steel. Steel-framed buildings are lighter, more durable, and more cost-effective to assemble than buildings with timber.
Feel free to get in touch if you'd like a quote on a Steel Frame project.